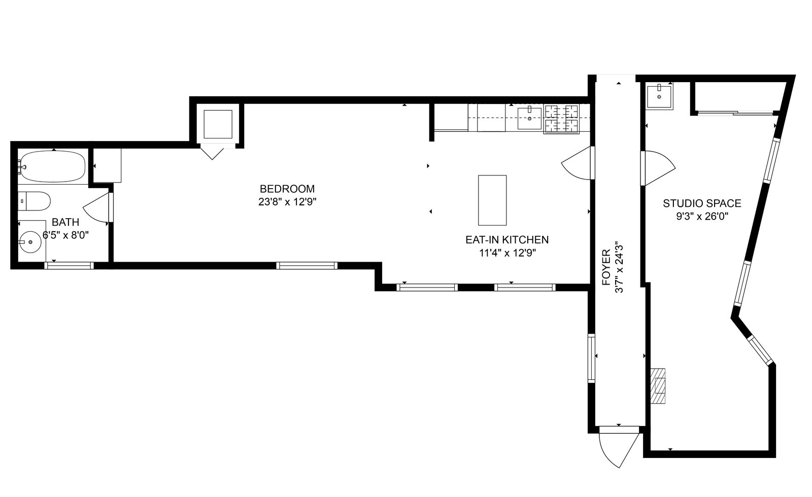
26 Irving Street #203

Virtual Tour

listing

Presented By

Jennifer Keenan
Realtor(R)
4Squares Residential Group, Keller Williams Realty Boston-Northwest
(781) 704-3193 - cell/text
#009513152
connect

Get in Touch

Send Inquiry
26 Irving St Unit 203
Malden, MA 02148
Loading...