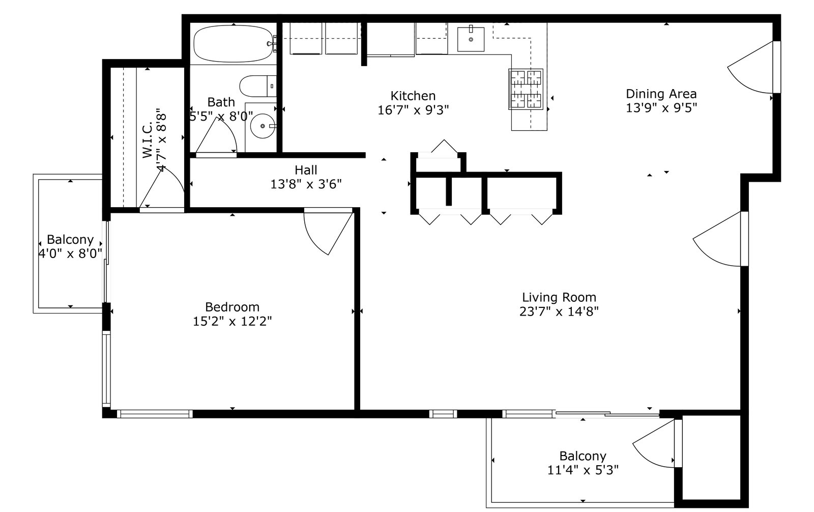
Modern 1-bedroom condo in the convenient and well-run Riverview Village complex. Enter into an oversized open-concept living and dining room with cathedral ceilings - perfect for entertaining, with sliding glass doors leading to an adjacent 3-season balcony. Large kitchen with newer appliances, abundant storage, and fantastic counter space. The spacious, flexible layout has ample storage and could also easily accommodate a work-from-home office area. The bedroom is roomy and private, with a second balcony and large walk-in closet. This popular, rear corner layout means abundant natural light throughout with maximum privacy. Side-by-side, in-unit laundry and central AC. Easy parking, and in-ground community pool to enjoy on summer days. Condo fee includes heat, hot water and gas. Pet-friendly. Conveniently located on Pawtucket Blvd, on the Tyngsboro line and adjacent to the gorgeous Merrimack River. Easy access to UMass Lowell, The River Walkway, and tax-free shopping in Nashua.
Property Details
Photos
3D Tour
Floor Plan
Map
Presented By

